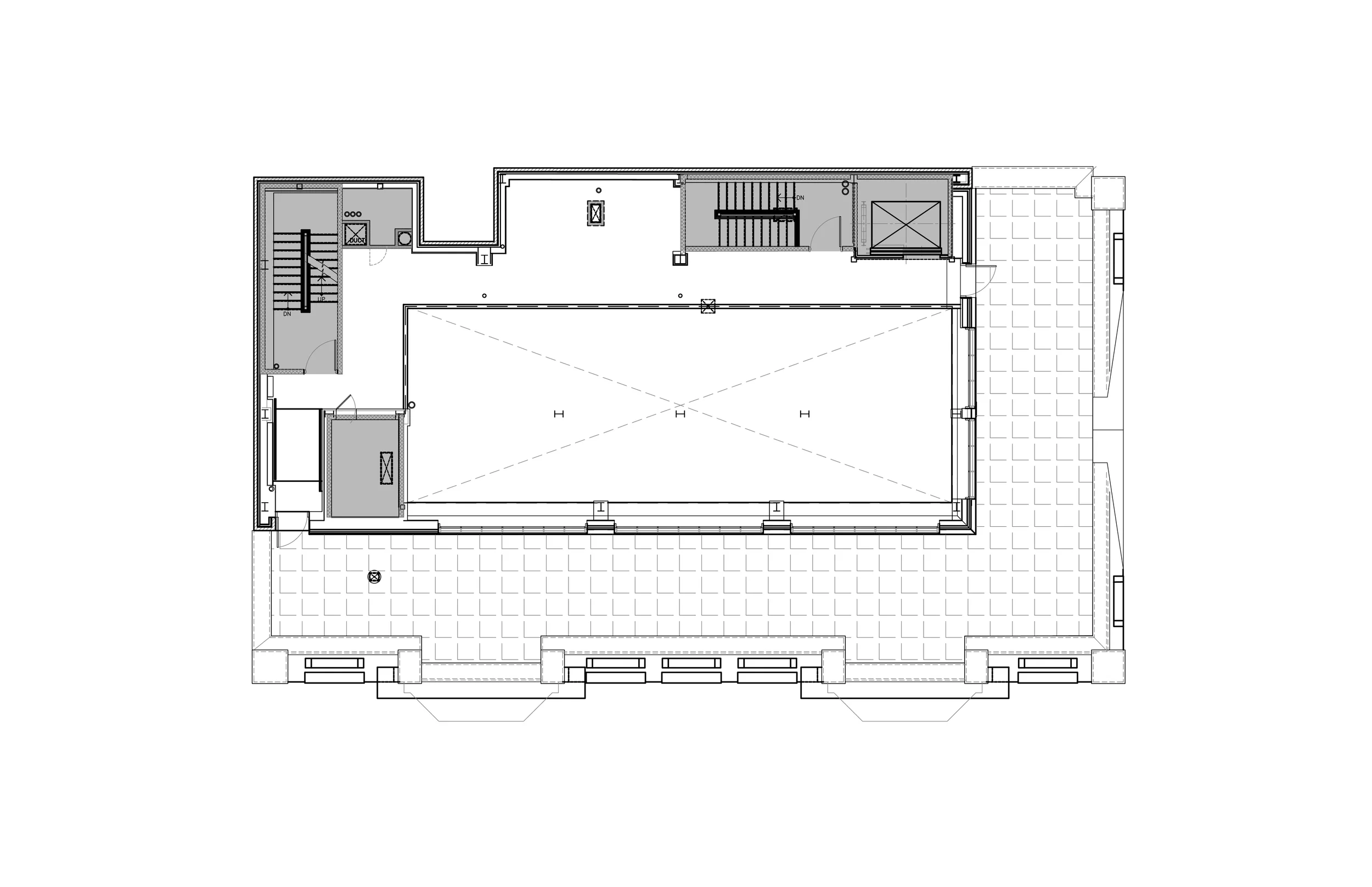
Office Space
Floors Layouts 3 - 7
CONTACT
Paul Walker | First Vice President
CBRE, Inc
200 Park Avenue | New York, NY 10166
T 212 984-7117
Paul.Walker@cbre.com
